-
825 m²
Bouwgrond te koop in Buggenhout
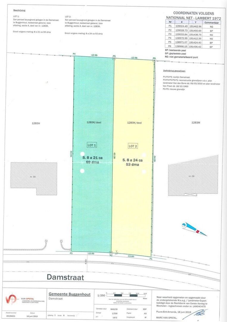
In Opdorp, bieden we u deze 2 loten bouwgrond voor een half-open bebouwing (driegevel-woningen) aan. Gelegen in een woongebied met landelijk karakter, met achterliggend landschappelijk waardevol agrarisch gebied. Bestemming: het oprichten van eengezinswoningen (met inbegrip van zorg-wonen). De bouwgronden zijn gelegen in een verkaveling voor 2 half-open bebouwingen. De grondoppervlakte van het linker-lot bedraagt: 8a 21ca. De grondoppervlakte van het rechter-lot bedraagt: 8a 24ca. Deze bouwgronden geven de mogelijkheid tot het bouwen van uw droomwoning. Zo is een gevelbreedte van bij de 8-9 meter mogelijk. Bouw-vrije strook: 4 meter.
De bouwdiepte op het gelijkvloers is 20 meter. De bouwdiepte op de eerste verdieping is 12 meter. Dit zorgt voor een prachtige, stijlvolle en ruime bouw met een gelijkvloers en 2 verdiepen. Garage mag ontworpen worden in hoofd- of bijgebouw. De bouwvoorschriften/verkaveling-voorschiften zijn terug te vinden op de website: www.arthur.be
De bouwgrond is gelegen op op een verbindingsweg vlakbij het centrum (beenhouwer, bakker, school en recreatie) van Opdorp-Buggenhout, het groene ontmoetingspunt “Den Dries” en de verbindingswegen Dendermonden-Mechelen-Antwerpen. Vraagprijs per lot: 250.000,- EUR. Verdere info over uw persoonlijke bouw zijn te bekomen bij de Gemeente Buggenhout: omgeving@buggenhout.be. Info te downloaden op: www.arthur.be. Voor een GRATIS SCHATTING of meer info, contacteer DIETER van IMMO ARTHUR SEGERS via info@arthur.be
Dieter De Vos
financieel
- Prijs
- € 250.000
- Beschikbaarheid
- Vanaf akte
- Kadastraal inkomen
- € 6
ligging
- Ligging
- Stadsrand
terrein
- Perceel oppervlakte
- 825 m²
- Terreindiepte
- 64 m
- Tuin
- Nee
indeling
- Terras
- Nee
downloads
stedenbouwkundige informatie
- Voorkooprecht
- Nee
- P-score
- A
Wenst u meer informatie over deze eigendom of een afspraak voor bezichtiging?
Opdorp: 2 prachtige & landschappelijke bouwgronden
Damstraat 37, 9255 Buggenhout
€ 250.000
- 825 m²